優質的服務流程
· quality of service processes ·

需求溝通傾聽客戶需求,了解用戶使用環境和現場工況
方案設計根據現場實際工況,針對性出具解決方案
合同簽訂技術和商務規范確認,簽訂合作協議
產品制作選擇最優質的元器件,嚴格按照技術協議
調試安裝現場規范安裝,靜態動態調試,分析儀運行
售后服務后續維護,持續跟進,終身維修

全國熱線
銷售熱線
公司地址山東濟南(nan)市槐蔭區(qu)太平(ping)河南(nan)路1567號(hao)均和云(yun)谷濟南(nan)匯智港6號(hao)樓
摘要:本文以北方(fang)(fang)某電(dian)廠(chang)為例,對(dui)火電(dian)廠(chang)鍋爐(lu)脫硫(liu)脫硝(xiao)問題進(jin)行分析(xi),對(dui)其(qi)工藝(yi)流程進(jin)行設(she)計,從脫硫(liu)脫硝(xiao)方(fang)(fang)案(an)選(xuan)擇、工藝(yi)系統(tong)設(she)計及配(pei)置圖 3 個(ge)方(fang)(fang)面(mian)進(jin)行了(le)詳細地闡述,最(zui)終(zhong)實現控制電(dian)廠(chang)大氣污染排放(fang)量(liang),為其(qi)它同類項(xiang)目提供技術(shu)支持和借鑒。
大氣(qi)污(wu)染(ran)控制問(wen)題一直是(shi)社會關(guan)(guan)注(zhu)的熱點問(wen)題之(zhi)一。資(zi)料表明,火(huo)電(dian)廠(chang)是(shi)大氣(qi)污(wu)染(ran)源產生的主要(yao)原(yuan)因之(zhi)一,因此如何(he)解(jie)決火(huo)電(dian)廠(chang)的大氣(qi)污(wu)染(ran)問(wen)題成(cheng)為現(xian)實工(gong)(gong)程(cheng)中(zhong)的關(guan)(guan)鍵問(wen)題。其(qi)中(zhong)火(huo)電(dian)廠(chang)鍋爐的脫(tuo)(tuo)硫脫(tuo)(tuo)硝(xiao)工(gong)(gong)藝(yi)技術設計是(shi)其(qi)最重要(yao)的部分,本文主要(yao)針對北(bei)方熱電(dian)廠(chang)鍋爐脫(tuo)(tuo)硫脫(tuo)(tuo)硝(xiao)工(gong)(gong)藝(yi)進(jin)行論證,從其(qi)方案(an)選擇、系統(tong)設計,以及圖紙繪制等方面進(jin)行詳細闡述。
1 工程概況(kuang)
本(ben)文所述電廠(chang)(chang)位(wei)于(yu)中原平(ping)原,其地質(zhi)條件較好,項目選址合理。工廠(chang)(chang)為(wei)(wei)四(si)邊形,總(zong)(zong)面積(ji)(ji)18203m2,建筑面積(ji)(ji)8000 m2。工廠(chang)(chang)區(qu)的(de)大門位(wei)于(yu)南(nan)側(ce)(ce)(ce)的(de)中間,進入大門后在行政(zheng)樓左側(ce)(ce)(ce)為(wei)(wei)鍋(guo)(guo)(guo)(guo)爐(lu)(lu)(lu)(lu)房(fang),其內包括鍋(guo)(guo)(guo)(guo)爐(lu)(lu)(lu)(lu)間、軟水(shui)(shui)(shui)間、控制室等(deng),其西側(ce)(ce)(ce)為(wei)(wei)輸(shu)(shu)煤系統。鍋(guo)(guo)(guo)(guo)爐(lu)(lu)(lu)(lu)房(fang)的(de)東側(ce)(ce)(ce)為(wei)(wei)煙囪,鍋(guo)(guo)(guo)(guo)爐(lu)(lu)(lu)(lu)房(fang)的(de)西側(ce)(ce)(ce)為(wei)(wei)2個(ge)儲煤場(chang)。主干(gan)道寬度(du)設(she)置7m,次干(gan)道4m,均采用(yong)水(shui)(shui)(shui)泥(ni)路面,完(wan)全(quan)滿足廠(chang)(chang)區(qu)內消防和運輸(shu)(shu)的(de)需要(yao)。總(zong)(zong)體(ti)(ti)規劃布(bu)局充分利(li)用(yong)了(le)地形,布(bu)局緊湊,以節省土(tu)地。本(ben)項目共有(you)3臺鍋(guo)(guo)(guo)(guo)爐(lu)(lu)(lu)(lu),2臺熱水(shui)(shui)(shui)鍋(guo)(guo)(guo)(guo)爐(lu)(lu)(lu)(lu)和1臺鏈條鍋(guo)(guo)(guo)(guo)爐(lu)(lu)(lu)(lu),總(zong)(zong)出(chu)力設(she)計125 MW,3個(ge)余熱鍋(guo)(guo)(guo)(guo)爐(lu)(lu)(lu)(lu)和燃煤工業鍋(guo)(guo)(guo)(guo)爐(lu)(lu)(lu)(lu)產生(sheng)的(de)高溫(wen)(wen)水(shui)(shui)(shui)通過(guo)主管網(wang)輸(shu)(shu)送到熱力站(zhan),熱量通過(guo)熱交(jiao)換器傳遞(di)給低(di)(di)溫(wen)(wen)水(shui)(shui)(shui),然后低(di)(di)溫(wen)(wen)水(shui)(shui)(shui)從二級(ji)管網(wang)輸(shu)(shu)送到熱用(yong)戶。DHL70-1.6/150/90-AIII鏈條鍋(guo)(guo)(guo)(guo)爐(lu)(lu)(lu)(lu),噸位(wei)為(wei)(wei)100 t/h,鍋(guo)(guo)(guo)(guo)爐(lu)(lu)(lu)(lu)給水(shui)(shui)(shui)溫(wen)(wen)度(du)90℃,鍋(guo)(guo)(guo)(guo)爐(lu)(lu)(lu)(lu)供出(chu)熱水(shui)(shui)(shui)溫(wen)(wen)度(du)為(wei)(wei)150℃,鍋(guo)(guo)(guo)(guo)爐(lu)(lu)(lu)(lu)效率(lv)(lv)83%;DHL29-1.25/130/90型熱水(shui)(shui)(shui)鍋(guo)(guo)(guo)(guo)爐(lu)(lu)(lu)(lu),噸位(wei)為(wei)(wei)40 t/h,鍋(guo)(guo)(guo)(guo)爐(lu)(lu)(lu)(lu)給水(shui)(shui)(shui)溫(wen)(wen)度(du)90℃,鍋(guo)(guo)(guo)(guo)爐(lu)(lu)(lu)(lu)效率(lv)(lv)80%,鍋(guo)(guo)(guo)(guo)爐(lu)(lu)(lu)(lu)供出(chu)熱水(shui)(shui)(shui)溫(wen)(wen)度(du)為(wei)(wei)130℃。
本項目脫硫脫銷除塵技(ji)術是在 3 臺鍋爐的煙(yan)道(dao)出口分別預留(liu)(liu)脫硫除塵裝置(zhi)建(jian)設(she)用地,預留(liu)(liu)場(chang)地滿(man)足脫硫除塵裝置(zhi)的建(jian)設(she)要(yao)求。本項目脫硝(xiao)(xiao)系統采(cai)用 SCR 與(yu) SNCR 聯合脫硝(xiao)(xiao)工藝技(ji)術,首先在鍋爐排煙(yan)口設(she)置(zhi) SNCR 噴淋層進(jin)行初步脫硝(xiao)(xiao),然后煙(yan)氣經過煙(yan)道(dao)中(zhong) SCR 催(cui)(cui)化(hua)劑催(cui)(cui)化(hua)層進(jin)行進(jin)一步脫硝(xiao)(xiao),從而使氮氧化(hua)物(wu)濃(nong)度大(da)量降低(di),達(da)到排放標準。SNCR 噴淋裝置(zhi)安裝在鍋爐燃燒系統中(zhong),SCR 催(cui)(cui)化(hua)層安裝在煙(yan)道(dao)預留(liu)(liu)段中(zhong),不需額外(wai)預留(liu)(liu)建(jian)設(she)用地。
2 工藝技術方案選擇
2.1脫硫工藝(yi)方案選擇(ze)
本文對(dui)幾種(zhong)常用(yong)的脫硫(liu)技術方法進行(xing)比較(jiao),其對(dui)比結(jie)果見表 1。
表(biao) 1 脫(tuo)硫工藝(yi)方案(an)條件(jian)對比表(biao)

從表 1 可以看出,石(shi)(shi)(shi)(shi)(shi)(shi)灰(hui)(hui)石(shi)(shi)(shi)(shi)(shi)(shi)-石(shi)(shi)(shi)(shi)(shi)(shi)膏(gao)工(gong)藝可以廣(guang)泛的應用(yong)(yong),并且不受煤燃燒的硫(liu)(liu)含(han)量和單(dan)位容量限制,脫硫(liu)(liu)效率(lv)高,一(yi)般可達 95%。該技術成熟,應用(yong)(yong)廣(guang)泛,石(shi)(shi)(shi)(shi)(shi)(shi)灰(hui)(hui)石(shi)(shi)(shi)(shi)(shi)(shi)-石(shi)(shi)(shi)(shi)(shi)(shi)膏(gao)工(gong)藝的綜合應用(yong)(yong)能夠(gou)滿足(zu)本(ben)項目脫硫(liu)(liu)率(lv)的要(yao)求(qiu)。近年來,石(shi)(shi)(shi)(shi)(shi)(shi)灰(hui)(hui)石(shi)(shi)(shi)(shi)(shi)(shi)-石(shi)(shi)(shi)(shi)(shi)(shi)膏(gao)脫硫(liu)(liu)技術得到(dao)(dao)了(le)很大(da)的改善,覆蓋面積(ji)廣(guang),成本(ben)也在下(xia)降。且產(chan)生的副(fu)產(chan)物(wu)處理方便,利用(yong)(yong)范(fan)圍(wei)廣(guang),可以較(jiao)大(da)減少處理成本(ben)。雙堿法(fa)(fa)(fa)脫硫(liu)(liu)雖然與(yu)石(shi)(shi)(shi)(shi)(shi)(shi)灰(hui)(hui)石(shi)(shi)(shi)(shi)(shi)(shi)-石(shi)(shi)(shi)(shi)(shi)(shi)膏(gao)法(fa)(fa)(fa)同(tong)樣能達到(dao)(dao) 95%以上,但副(fu)產(chan)物(wu)處理麻煩,一(yi)般都以拋棄為主,氨法(fa)(fa)(fa)適用(yong)(yong)機組(zu)小且吸收劑來源(yuan)(yuan)需要(yao)當(dang)地(di)滿足(zu)這一(yi)條件,沒(mei)有石(shi)(shi)(shi)(shi)(shi)(shi)灰(hui)(hui)石(shi)(shi)(shi)(shi)(shi)(shi)-石(shi)(shi)(shi)(shi)(shi)(shi)膏(gao)法(fa)(fa)(fa)與(yu)雙堿法(fa)(fa)(fa)簡(jian)單(dan)。所以本(ben)熱源(yuan)(yuan)廠最終采用(yong)(yong)石(shi)(shi)(shi)(shi)(shi)(shi)灰(hui)(hui)石(shi)(shi)(shi)(shi)(shi)(shi)-石(shi)(shi)(shi)(shi)(shi)(shi)膏(gao)法(fa)(fa)(fa)作(zuo)為脫硫(liu)(liu)主要(yao)工(gong)藝。
2.2 脫硝工藝方案的選擇
本文對 4 種不(bu)同的(de)脫(tuo)(tuo)銷工藝(yi)(yi)方法進行(xing)對比,結果見表 2。SCR 與低(di)氮燃燒技(ji)術(shu)雖(sui)然脫(tuo)(tuo)硝效率(lv)高(gao),且(qie)產物穩定,但設(she)備成本較高(gao)。SNCR 技(ji)術(shu)雖(sui)然成本較低(di)但運行(xing)條件所需(xu)要(yao)的(de)溫度較高(gao)且(qie)脫(tuo)(tuo)硝效率(lv)低(di),無(wu)法達到排(pai)(pai)放標(biao)準。所以本熱源廠最終(zhong)選(xuan)擇 SCR 與SNCR 聯(lian)合(he)(he)脫(tuo)(tuo)硝工藝(yi)(yi)。根據《國家(jia)環境(jing)保護“十(shi)三五”規(gui)劃(hua)》要(yao)求,新建(jian)燃煤鍋(guo)爐必須安裝脫(tuo)(tuo)硫脫(tuo)(tuo)硝設(she)施,所以本項目選(xuan)用(yong)在(zai)爐膛內添(tian)加氨水噴淋裝置進行(xing)SNCR 法脫(tuo)(tuo)銷,并在(zai)鍋(guo)爐與脫(tuo)(tuo)硫塔之間的(de)煙道添(tian)加SCR 催化層,采用(yong)“+1”層,即使用(yong) 3 層備用(yong) 1 層,實現(xian)了減少 NOX排(pai)(pai)放的(de)目的(de)。因此(ci),脫(tuo)(tuo)硝項目選(xuan)擇SCR 與 SNCR 聯(lian)合(he)(he)脫(tuo)(tuo)硝工藝(yi)(yi)是可(ke)行(xing)的(de)實施方案。
表(biao) 2 脫硝工藝方案條件對比表(biao)

3 工(gong)藝(yi)系統設計(ji)
3.1脫(tuo)硫除塵系統設(she)計參數與(yu)性(xing)能要求
根(gen)據煤(mei)質化驗報告(gao),本(ben)項(xiang)目(mu)(mu)用(yong)(yong)煤(mei)含硫率 0.32%,灰分 7.11%。本(ben)項(xiang)目(mu)(mu)用(yong)(yong)煤(mei)量為 9.56 萬 t/a (539.8 t/d),3 臺鍋爐共用(yong)(yong) 1 根(gen)煙(yan)囪,按(an)照以上系數,結(jie)合煤(mei)質化驗結(jie)果(guo),鍋爐出口(kou)煙(yan)氣量為 983765108m3/a(277900m3/h)。本(ben) 項(xiang) 目(mu)(mu) 消 耗 石 灰 35.78 kg/h(313.43 t/a),石灰石為 35.78 kg(313.43 t/a)。脫硫除塵(chen)系統設計(ji)參數見表 3。
表 3 脫硫除(chu)塵(chen)系統設計參(can)數.

3.2 脫硝工(gong)藝系統(tong)參(can)數(shu)設計及性(xing)能要求
根(gen)據(ju)計算,本項(xiang)目 3 臺(tai)鍋爐(lu)總(zong)用(yong)煤量(liang)為(wei)(wei)(wei) 9.56 萬t/a(539.8 t/d),3 臺(tai)鍋爐(lu)最(zui)終經過(guo)(guo)總(zong)煙(yan)(yan)道共(gong)用(yong) 1 根(gen)煙(yan)(yan)囪。本項(xiang)目選擇的(de)(de)催化(hua)劑層數為(wei)(wei)(wei)“2+1”的(de)(de)脫硝效率在(zai) 70%~75%之上,為(wei)(wei)(wei)保證實際(ji)過(guo)(guo)程中的(de)(de)運行穩定,SCR 脫硝效率取最(zui)小(xiao)值(zhi) 70%。為(wei)(wei)(wei)貫徹(che)可持續發(fa)展,將脫硝效率提高到 85%,則 SNCR 脫硝效率需(xu)要(yao)達到 85%-70%=15%,即需(xu)要(yao)降(jiang)低的(de)(de)氮(dan)氧化(hua)物(wu)濃度為(wei)(wei)(wei)42.86 mg/m3,根(gen)據(ju)化(hua)學反應方程式需(xu)要(yao)的(de)(de) NH3的(de)(de)量(liang)為(wei)(wei)(wei) 42.16 t/a。
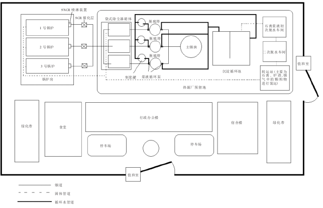
3.3 總(zong)平面(mian)布(bu)置(zhi)
脫(tuo)(tuo)硫除塵(chen)系統按其工藝特性(xing)集中布(bu)置(zhi)(zhi)(zhi)于爐(lu)(lu)后。3 臺鍋(guo)爐(lu)(lu)煙(yan)(yan)氣集中在(zai)(zai) 1 個總煙(yan)(yan)道,然后集中到袋式(shi)除塵(chen)器(qi)箱(xiang)的中間(jian)部(bu)分用(yong)來(lai)收集煙(yan)(yan)氣中的灰塵(chen)和(he)(he)霧氣。脫(tuo)(tuo)硫布(bu)置(zhi)(zhi)(zhi)方(fang)式(shi)采用(yong) 1 爐(lu)(lu) 1 塔的方(fang)式(shi),泥(ni)漿循環(huan)泵(beng)分別(bie)設(she)(she)置(zhi)(zhi)(zhi)在(zai)(zai) 3 個吸收塔的西側和(he)(he)東(dong)側。本項目所采用(yong) SCR 與 SNCR 聯合脫(tuo)(tuo)硝(xiao)(xiao)工藝,具有脫(tuo)(tuo)硝(xiao)(xiao)效率高(gao),不(bu)用(yong)添加額外設(she)(she)施只需要(yao)在(zai)(zai)鍋(guo)爐(lu)(lu)煙(yan)(yan)氣出口處(chu)設(she)(she)置(zhi)(zhi)(zhi)氨水(shui)噴(pen)淋裝置(zhi)(zhi)(zhi)和(he)(he)煙(yan)(yan)道預留段添加 SCR 催化層。脫(tuo)(tuo)硫脫(tuo)(tuo)硝(xiao)(xiao)除塵(chen)平面布(bu)置(zhi)(zhi)(zhi)如圖 1 所示(shi)。

圖(tu) 1 脫(tuo)硫脫(tuo)硝除塵平面布(bu)置
3.4 脫硫工藝系統設計
本項目設計采用(yong)石灰(hui)石-石膏法(fa)脫硫(liu),不設煙氣旁(pang)路。
(1) 吸(xi)收(shou)劑(ji)制備與(yu)補充系統(tong)。該系統(tong)采用碳(tan)酸鈣作為(wei)吸(xi)收(shou)劑(ji),碳(tan)酸鈣干粉料加入(ru)(ru)到(dao)富有氫離子(zi)的(de)(de)水(shui)中(zhong)(zhong),然后(hou)再(zai)在(zai)溶液(ye)罐中(zhong)(zhong)進行配(pei)置,當配(pei)置成堿液(ye)之(zhi)后(hou)將其加入(ru)(ru)脫(tuo)(tuo)硫(liu)(liu)塔中(zhong)(zhong)進行脫(tuo)(tuo)硫(liu)(liu)處理工藝(yi),為(wei)了(le)使處理后(hou)的(de)(de)脫(tuo)(tuo)硫(liu)(liu)產物(wu)能夠再(zai)生(sheng)(sheng)還原,一(yi)般將脫(tuo)(tuo)硫(liu)(liu)液(ye)放(fang)入(ru)(ru)再(zai)生(sheng)(sheng)池(chi)中(zhong)(zhong),含(han)渣(zha)液(ye)體(ti)(ti)進入(ru)(ru)沉淀(dian)池(chi),清潔液(ye)回用于脫(tuo)(tuo)硫(liu)(liu),脫(tuo)(tuo)硫(liu)(liu)殘渣(zha)進行脫(tuo)(tuo)水(shui)。在(zai)整(zheng)個(ge)操作過程中(zhong)(zhong),來自(zi)脫(tuo)(tuo)硫(liu)(liu)的(de)(de)許(xu)多固(gu)體(ti)(ti)殘余物(wu)和其他顆粒物(wu)質通(tong)過泥漿泵(beng)被泵(beng)送到(dao)石膏脫(tuo)(tuo)水(shui)系統(tong)中(zhong)(zhong),且水(shui)被移除(chu)并返回到(dao)再(zai)生(sheng)(sheng)罐。由(you)于部分(fen)碳(tan)酸鈣將在(zai)排出的(de)(de)殘渣(zha)中(zhong)(zhong),所以(yi)碳(tan)酸鈣需定期(qi)補充,以(yi)確(que)保整(zheng)個(ge)脫(tuo)(tuo)硫(liu)(liu)系統(tong)的(de)(de)正常運行和煙氣(qi)排放(fang)達到(dao)標(biao)準;
(2) SO2吸(xi)收(shou)(shou)(shou)系統。氣體進入吸(xi)收(shou)(shou)(shou)塔并朝上流(liu)動。漿(jiang)料逆(ni)流(liu)方(fang)式洗滌,氣體和液(ye)體完全接觸。充分吸(xi)收(shou)(shou)(shou) SO2,吸(xi)收(shou)(shou)(shou)液(ye)在再生池內(nei)反應(ying)后,再生過的碳酸(suan)鈣(gai)溶液(ye)循環打入吸(xi)收(shou)(shou)(shou)塔;
(3) 脫硫產物處理(li)系(xi)統。由(you)于(yu)(yu)脫硫與除塵(chen)屬(shu)于(yu)(yu)同(tong)一系(xi)統,所(suo)以其最終附屬(shu)產品為(wei)石膏(gao)漿和(he)粉塵(chen)。經被濃縮后在灰渣間內(nei)臨時儲存,作為(wei)建材(cai)原(yuan)料(liao)使用,溢(yi)流(liu)液回流(liu)到(dao)再生池(chi)內(nei)。
3.5 脫硝工藝(yi)系(xi)統設計

圖(tu)(tu) 2 脫(tuo)硫系統流程(cheng)圖(tu)(tu)
脫(tuo)硫(liu)液循環槽的作用是還原脫(tuo)硫(liu)劑脫(tuo)硫(liu)能力。本脫(tuo)硫(liu)項目(mu)脫(tuo)硫(liu)塔(ta)采用 3 層(ceng)噴淋層(ceng),最后(hou)脫(tuo)硫(liu)產物經(jing)過 1 次脫(tuo)水和(he) 2 次脫(tuo)水收集在儲藏庫(ku)中進行裝運或(huo)放置。脫(tuo)硫(liu)系統(tong)流程如(ru)圖 2 所示。

圖 3 SCR/SNCR 聯合脫銷工藝
為了(le)降低(di) NOX排放,選用 SCR 與 SNCR 聯合(he)脫硝工(gong)藝(yi)(yi)。SCR 工(gong)藝(yi)(yi)雖然(ran)(ran)有著脫硝效率高、設備簡單、占地(di)面積小等特點,但是(shi)投資較高,需要的催(cui)化劑V2O5價格(ge)較高,所以選用聯合(he)脫硫,從而降低(di)成(cheng)本,提高經(jing)濟效益。由于(yu)工(gong)藝(yi)(yi)脫硝效率達到了(le) 85%以上,故(gu) NOx 濃度控制在≤200 mg/m3。本系統每臺鍋爐(lu)均(jun)設置 1 套 SCR 與 SNCR 聯合(he)脫硝工(gong)藝(yi)(yi)設備。氨氣從氨儲(chu)藏罐中進入(ru)蒸發器將氨水等蒸發為氣體或霧狀,然(ran)(ran)后經(jing)過噴(pen)嘴噴(pen)入(ru)進行反應。空氣預(yu)熱器與省煤器的作用都是(shi)提高熱效率,減少能量(liang)損失。SCR/SNCR 聯合(he)脫銷工(gong)藝(yi)(yi)如圖 3 所示。
4 結論(lun)
本文結合北方某電廠對(dui)其脫(tuo)硫(liu)(liu)脫(tuo)硝防(fang)止大氣污(wu)染技術進(jin)行(xing)設計,在脫(tuo)硫(liu)(liu)脫(tuo)硝工(gong)(gong)(gong)藝方法上采用石(shi)(shi)灰石(shi)(shi)-石(shi)(shi)膏(gao)法以及SCR與SNCR兩者相結合方法。同時對(dui)項目工(gong)(gong)(gong)藝設計系統的設計參(can)數和(he)性能要求進(jin)行(xing)了詳細地闡述,最終給出(chu)平面布(bu)置圖(tu)和(he)工(gong)(gong)(gong)藝流程(cheng)圖(tu)。采用本文方案(an)和(he)工(gong)(gong)(gong)藝流程(cheng)可(ke)以使鍋爐排放煙氣達(da)到國家標準。
山東新(xin)澤(ze)儀(yi)(yi)器(qi)有限(xian)公司的(de)(de)(de)煙氣(qi)(qi)在線(xian)監測(ce)(ce)系(xi)(xi)統(tong)(tong),所有探頭、采(cai)(cai)樣系(xi)(xi)統(tong)(tong)部件都(dou)采(cai)(cai)用耐腐(fu)蝕(shi)材料,其中,探頭材質為特種耐酸不(bu)銹(xiu)鋼(316L) 、過濾器(qi)材質為陶瓷、采(cai)(cai)樣伴熱管線(xian)為特別定制的(de)(de)(de)Φ8聚四氟乙烯伴熱管。取樣探頭通(tong)過加熱器(qi)加熱到120℃~150℃,防止樣氣(qi)(qi)在經(jing)過取樣探頭后,產(chan)生冷(leng)凝水(shui)。來自采(cai)(cai)樣探頭的(de)(de)(de)樣氣(qi)(qi)經(jing)高溫伴熱管線(xian),通(tong)過三(san)級過濾器(qi)除塵,經(jing)過兩(liang)級冷(leng)凝系(xi)(xi)統(tong)(tong)除水(shui)后直接進入分析儀(yi)(yi)內測(ce)(ce)量(liang)。保證氣(qi)(qi)體(ti)(ti)測(ce)(ce)量(liang)的(de)(de)(de)精準性(xing),設備的(de)(de)(de)耐用性(xing)!


需求溝通傾聽客戶需求,了解用戶使用環境和現場工況
方案設計根據現場實際工況,針對性出具解決方案
合同簽訂技術和商務規范確認,簽訂合作協議
產品制作選擇最優質的元器件,嚴格按照技術協議
調試安裝現場規范安裝,靜態動態調試,分析儀運行
售后服務后續維護,持續跟進,終身維修