優質的服務流程
· quality of service processes ·

需求溝通傾聽客戶需求,了解用戶使用環境和現場工況
方案設計根據現場實際工況,針對性出具解決方案
合同簽訂技術和商務規范確認,簽訂合作協議
產品制作選擇最優質的元器件,嚴格按照技術協議
調試安裝現場規范安裝,靜態動態調試,分析儀運行
售后服務后續維護,持續跟進,終身維修

全國熱線
銷售熱線
公司地址山東濟南(nan)市(shi)槐蔭區太平河南(nan)路1567號(hao)(hao)均(jun)和云(yun)谷濟南(nan)匯智港6號(hao)(hao)樓
第(di)1章(zhang) 項目介紹
山東新澤儀器有限公(gong)司生產的 TK-1100 型(xing)氨(an)(an)逃(tao)逸在線(xian)監測系(xi)統采用高 溫伴熱抽取(qu)技術(shu),對(dui)脫(tuo)硝過(guo)程中的逃(tao)逸氨(an)(an)進行連(lian)續在線(xian)監測,系(xi)統由取(qu)樣(yang)及(ji) 傳(chuan)輸(shu)單(dan)元(yuan)(yuan)、預處(chu)理及(ji)控(kong)制單(dan)元(yuan)(yuan)、分析單(dan)元(yuan)(yuan)三部分構成, 主要應(ying)用于眾多工業 領(ling)域氣體排(pai)放監測和(he)過(guo)程控(kong)制, 例如(ru):燃煤發電廠(chang)(chang)、鋁廠(chang)(chang)、鋼鐵廠(chang)(chang)、冶(ye)煉廠(chang)(chang)、 垃圾發電站(zhan)、水泥廠(chang)(chang)和(he)化工廠(chang)(chang)、玻璃(li)廠(chang)(chang)等。
分析儀(yi)采用(yong) TDLAS 技術(可調諧(xie)半(ban)導體激光光譜吸收(shou)技術Tunable Diode Laser Absorption Spectroscopy),為(wei)目前國際最先(xian)進的氣體測量方 法之一, 該儀(yi)表(biao)具有(you)靈敏度高、響應速度快、不受背景氣體干擾(rao)、非(fei)接觸式
測量等特點,為實時準確地(di)反映 NH3 變化提供(gong)了(le)可靠保證。
1 、項目總則
本技(ji)術(shu)附件(jian)闡(chan)明了在(zai)(zai)(zai)############鍋爐脫(tuo)硝用(yong)氨逃逸在(zai)(zai)(zai)線檢測儀工程項目 中關于分(fen)析儀表以(yi)及(ji)配套樣品系統的(de)技(ji)術(shu)方(fang)案, 并約定了買賣(mai)雙方(fang)的(de)職責(ze)及(ji)工作 范(fan)圍。需方(fang)提(ti)(ti)供本項目現(xian)場工藝參數、公(gong)用(yong)工程和其(qi)他配合條(tiao)件(jian), 供方(fang)按本協議(yi) 要求(qiu)提(ti)(ti)供設備和技(ji)術(shu)服(fu)務(wu)。供方(fang)保證完全(quan)遵照技(ji)術(shu)規(gui)范(fan)的(de)要求(qiu), 所提(ti)(ti)供的(de)系統完 全(quan)滿(man)足(zu)國家(行業)標準規(gui)格(ge)要求(qiu),能在(zai)(zai)(zai)工藝流(liu)程上長期滿(man)意的(de)運行。
本技術附件作為商(shang)務(wu)合同附件, 經甲乙雙方簽字后生(sheng)效(xiao),生(sheng)效(xiao)后的版本將作
為商務合(he)同(tong)的技(ji)術附件(jian),與商務合(he)同(tong)具有同(tong)樣(yang)法律(lv)效力。
2 、概述
根據############鍋爐脫硝(xiao)用氨(an)逃(tao)逸在線檢測(ce)儀招標要(yao)求(qiu), 本(ben)技(ji)術方案詳細 說明了所有 TK-1100 型(xing)氨(an)逃(tao)逸監(jian)測(ce)系統在 SCR/SNCR 脫硝(xiao)及煙氣排(pai)放工(gong)程中(zhong)應用 的技(ji)術細節(jie)。所配置的產品基于工(gong)藝參數, 在技(ji)術性能上滿足買方工(gong)藝參數限定 的測(ce)量要(yao)求(qiu)。
我們提(ti)供的所(suo)有分析儀及附(fu)件(jian)和附(fu)屬設(she)備(bei)的制造質量、供貨、技術規格, 文 件(jian)的圖(tu)紙資料(liao)、技術服(fu)務(wu)(wu)、工(gong)程服(fu)務(wu)(wu)、包裝運輸、開(kai)箱檢驗、安裝指導(dao)、現(xian)場(chang)調 試、設(she)備(bei)調試運行等各個環節負(fu)有完全責任。
我們(men)提(ti)交的(de)技術文(wen)件(jian)遵守本(ben)(ben)項目的(de)標準(zhun)(zhun)、規定(ding)和(he)本(ben)(ben)詢購文(wen)件(jian)的(de)要求, 并保證 供(gong)貨(huo)商(shang)及(ji)相關的(de)文(wen)件(jian)也遵守本(ben)(ben)項目的(de)標準(zhun)(zhun)、規定(ding)和(he)本(ben)(ben)詢購文(wen)件(jian)的(de)要求。
3 、項目(mu)方案(an)及優勢
由(you)于工況惡劣,樣(yang)(yang)氣(qi)中(zhong)含(han)有大(da)(da)量粉(fen)塵及飽和水蒸(zheng)氣(qi),我們采用當前最先(xian)進 的(de)(de) TK-1100 型激光氣(qi)體分(fen)析(xi)(xi)儀(基(ji)于 TDLAS 技(ji)術) 分(fen)析(xi)(xi)微量 NH3。系統(tong)(tong)(包括(kuo)測(ce) 量池(chi)) 采用全程加(jia)熱(re), 保證樣(yang)(yang)品氣(qi)體溫(wen)度(du), 防止有水析(xi)(xi)出而對 NH3 的(de)(de)大(da)(da)量溶解影(ying) 響分(fen)析(xi)(xi)結(jie)果。探頭采用電加(jia)熱(re)過(guo)濾探頭, 在取樣(yang)(yang)出來就完(wan)成樣(yang)(yang)品的(de)(de)凈化, 減小了(le) 后級預處理的(de)(de)負荷, 大(da)(da)大(da)(da)降(jiang)低了(le)器件的(de)(de)故障率。系統(tong)(tong)設計有探頭自(zi)動反吹程序及 儀表自(zi)動標零(ling)程序,正常運行后僅需要(yao)正常的(de)(de)巡(xun)檢即可(ke)。傳輸(shu)管線采用定制(zhi) 230℃以上高溫(wen)復合電伴熱(re)管纜,并控制(zhi)在 2m 以內(nei)(確保盡量少的(de)(de) NH3 吸附), 整個預處理全部集(ji)成在高溫(wen)加(jia)熱(re)盒內(nei), 系統(tong)(tong)緊湊(cou)以避免長距離傳輸(shu)管路對 NH3
的吸(xi)附。
4、方案產品比(bi)較
與傳統的分析方式相比較(jiao),系統有(you)以下明顯優勢:
01.利用半導體激光良好的單色性,避免背景氣(qi)體吸收的干擾(rao);
02.利用半導體激(ji)光(guang)波(bo)長的可調諧(xie)性解決粉(fen)塵、視窗污染對測量的影響;
03.實(shi)地測量,氣體信息不易(yi)失(shi)真,響應速(su)度快(kuai),便于對生產過程(cheng)進行(xing)控制(zhi);
04.系統支持自動校準,減少人(ren)工維護;
05.儀器無運動器件,可靠性高(gao),維護方(fang)便,運行費用接近于零(僅為電費);
06.可自動修正環境溫度、壓力變化(hua)對測量(liang)的影(ying)響,確保測量(liang)精度;
07.非接(jie)觸(chu)測量,有非常(chang)強的高溫(wen)、高粉(fen)塵和強腐蝕(shi)等惡劣工業環境的適(shi)應能力(li);
08.往復回返式長光程的分析(xi)儀(yi)測(ce)量池,確(que)保(bao)分析(xi)靈敏度的同時又大大減(jian)小了(le)儀(yi)器(qi)的體積; 09.全(quan)程180C以(yi)上伴熱保(bao)溫,熱法測(ce)量,避免(mian)樣品中水分冷凝吸收NH3;
10.系統緊湊,結構精巧,便于現場安(an)裝;
11.系(xi)統自動化(hua)程度高,便于長期穩(wen)定運行(xing),維護量小。
第2章(zhang) 項目設計依據
乙方所(suo)提供的分析儀系統遵循下述標準和(he)規范:

第(di)3章(zhang)工作范(fan)圍(wei)
乙方工(gong)作范圍
在線分(fen)析系統的內部設計;
分(fen)析系統的運輸(shu)和現場開箱驗收工(gong)作;
指導甲方進行分析系統的安裝和調試(shi);
系(xi)統安裝(zhuang)完成后對甲(jia)方人(ren)員在現場進行儀(yi)表培訓:基(ji)本(ben)操作和(he)日(ri)常維護知識。
甲方工作(zuo)范圍
提供正確完整的(de)工況數(shu)據表,以便于乙方(fang)設計在線分(fen)析系統;
負責提供(gong)在(zai)線(xian)分析系統公用工(gong)程條件(jian)(jian),并負責分析系統的現(xian)場安裝(zhuang)和相關(guan)公 用條件(jian)(jian)的施(shi)工(gong)建(jian)設,例如公用工(gong)程管線(xian)(電(dian)(dian)源(yuan)、電(dian)(dian)信號)等(deng)的敷設;
第4章 項目(mu)設計方案
4.1 測(ce)量項目
測量(liang)參數:NH3;
4.2 測(ce)量位(wei)置
測量位置:SCR 脫硝反應器出口
4.3 測(ce)量方法
? 煙(yan)氣采樣方法:高溫(wen)抽(chou)取式;
? NH3 測量方(fang)法(fa):可調諧半導(dao)體激光光譜(pu)吸收技術 TDLAS;
4.4 系統特點
氨逃逸(yi)在線監(jian)測(ce)主要具有(you)以下技術(shu)優(you)勢(shi): ? 可(ke)靠(kao)的長(chang)光程加熱(re)氣(qi)室設(she)計(ji),光程可(ke)達(da) 3 米 ? 超低濃度測(ce)量,分辨率可(ke)達(da) 0.1ppm
? 特殊(shu)的多線光譜(pu)掃描算法,動態(tai)的粉塵(chen)和水(shui)份(fen)干擾補償(chang)
? 免標定設計,維護簡單,使用(yong)成本低(di)
4.5 典型(xing)應用
? SCR/SNCR 脫硝工藝(yi)控(kong)制
? 發(fa)動機尾氣(qi)排放(fang)控制
? 大氣環境監測
? 化工工藝控(kong)制
第5章系(xi)統配置清單(dan)


第6章(zhang) 系統組成部分介紹
6.1 取樣探頭

SNI-1010 型取(qu)樣(yang)探頭用于本(ben)系(xi)統的樣(yang)氣(qi)(qi)采樣(yang),具(ju)有濾塵和(he)伴熱的功能,可(ke)(ke)以有效的防止(zhi)采集的樣(yang)氣(qi)(qi)的冷凝,獨特的結構設(she)計使采樣(yang)系(xi)統更(geng)加可(ke)(ke)靠(kao),樣(yang)氣(qi)(qi)丟失(shi)率更(geng)小,保證分析(xi)系(xi)統的穩定和(he)真實(shi)。
6.1.1產品特點
該(gai)裝置與樣品接觸(chu)的部(bu)分全部(bu)采用316L不銹(xiu)鋼材料(liao)加工(gong)制成(cheng),高溫條(tiao)件下 抗腐能(neng)力很強。配制防雨罩完全可以勝任室(shi)外工(gong)作環境。
■在(zai)設(she)計上采用等溫加熱體,結構(gou)緊湊(cou),加熱溫度穩定。
■過(guo)(guo)濾(lv)(lv)器濾(lv)(lv)芯采(cai)用(yong)SiC陶瓷過(guo)(guo)濾(lv)(lv)器,具有過(guo)(guo)濾(lv)(lv)面積大(da),過(guo)(guo)濾(lv)(lv)精度高(gao)等特(te)點, 更換時(shi)(shi)可將其從裝置中(zhong)整體拉出,操作簡單(dan),無(wu)需工具,大(da)大(da)地縮短維(wei) 護更換的時(shi)(shi)間,并降低(di)了(le)勞動(dong)強度。
■該裝置(zhi)除設有一樣氣輸出口外,還(huan)設置(zhi)有一個可復用的反(fan)吹/校準口, 在(zai)配置(zhi)時可靈(ling)活安排氣路。
■操作簡單,帶(dai)有(you)低(di)溫報(bao)警.
■ 濾芯更換無需工具 。
■開關方(fang)便,帶扣(kou)鎖保(bao)護罩
■高效過濾清潔系(xi)統
6.1.2技(ji)術參數
■最高采樣溫度: 300°C
■最大工作壓力: 5bar
■采樣腔加熱溫度(du)(du): 200C (出廠(chang)設定(ding),溫度(du)(du)可調)
■電(dian)源: 220VAC 50/60Hz 400W
■環境溫(wen)度(du):一20~80°C
■最大粉塵濃度:100g/m3
■陶瓷濾芯(xin)過(guo)濾精度: 2^ m (其它精度可選,1-10M m)
■濾芯尺寸:150*40/20mm
■反吹(chui)氣(qi)接口: OD8/6卡套式接頭。
■采(cai)樣(yang)氣出(chu)口: OD8/6卡套式(shi)接頭
■含采樣(yang)探桿:C25X 1200mm/長度(du)可(ke)選
■安(an)裝附件(jian):安(an)裝法(fa)蘭盤(pan)(pan)對裝法(fa)蘭盤(pan)(pan)安(an)裝螺栓法(fa)蘭盤(pan)(pan)密(mi)封平墊
6.2預處理及(ji)控(kong)制單(dan)元

6.2.1 工作流程(cheng)
如系統流(liu)程圖所示, 樣(yang)(yang)氣經(jing)(jing)采樣(yang)(yang)探頭(tou), 由(you)采樣(yang)(yang)伴熱管輸(shu)送至預(yu)處理(li)單元(yuan), 預(yu) 處理(li)單元(yuan)包括常閉型高(gao)溫閥(fa) SV1, 精密過(guo)濾器(qi)、射(she)流(liu)泵(beng)(beng), 其中(zhong) SV1 閥(fa)用于(yu)在(zai)停止 采樣(yang)(yang)時(shi)切斷氣路, 精密過(guo)濾器(qi)用于(yu)進(jin)一步凈(jing)化樣(yang)(yang)氣, 去(qu)除樣(yang)(yang)氣中(zhong)的粉(fen)塵等, 射(she)流(liu) 泵(beng)(beng)則用于(yu)提供樣(yang)(yang)氣傳輸(shu)時(shi)的動力(li), 系統由(you) PLC 控制實際自(zi)動周期采樣(yang)(yang)及(ji)吹(chui)掃(sao)。所 有樣(yang)(yang)氣流(liu)經(jing)(jing)元(yuan)件及(ji)管路均置于(yu)恒溫加熱盒中(zhong), 防止管路被銨鹽堵(du)塞, 減少樣(yang)(yang)氣損(sun) 失。
6.2.2 技術參數
機柜: 1200H×850L×400Wmm,防護(hu)等級 IP65;
材(cai)質:采用 2mm 鋼(gang)板(ban)靜電噴(pen)涂;
控(kong)制(zhi)系(xi)統:采用 PLC 控(kong)制(zhi),實(shi)現自動采樣、吹掃、故障報(bao)警(jing)等;
射流(liu)泵:使用 0.2-0.6MPa 壓縮氣(qi)源(yuan)經預加熱(re)后進入射流(liu)泵產(chan)生采樣(yang)動 力, 采樣(yang)流(liu)量(liang)最(zui)大8L/min,316L 材(cai)質, 防腐蝕, 無(wu)機械部件, 保障長時 間穩定運行(xing),;
除塵(chen):經(jing)(jing)過采(cai)樣(yang)探(tan)頭除塵(chen)的氣(qi)體(ti)再(zai)經(jing)(jing)過一級 0.2um 級過濾器再(zai)到氣(qi)體(ti)分(fen) 析(xi)(xi)儀(yi),確(que)保分(fen)析(xi)(xi)儀(yi)的長期(qi)穩定運行(xing);
加(jia)熱(re): 所有樣氣流經(jing)元(yuan)件及管路均置(zhi)于恒(heng)溫加(jia)熱(re)盒(he)中,加(jia)熱(re)控制(zhi)溫度 190℃;
系統供電(dian):AC220V,3000W。
6.3 激光 NH3 分析單元(yuan)

6.3.1 測量原理
激(ji)光(guang)(guang)氣體分(fen)析儀的(de)測(ce)量(liang)原理是(shi)(shi)可(ke)調諧半(ban)導體激(ji)光(guang)(guang)光(guang)(guang)譜(pu)吸收技術(shu)(shu) Tunable Diode Laser Absorption Spectroscopy),TDLAS 最早(zao)于 20 世紀 70 年代提出。 初期的(de) TDLAS 技術(shu)(shu)只是(shi)(shi)一種實(shi)驗室(shi)研究用技術(shu)(shu),隨著半(ban)導體激(ji)光(guang)(guang)技術(shu)(shu)在(zai) 20 世紀 80 年代的(de)迅速發展,特(te)別是(shi)(shi) 20 世紀 90 年代以來,基于 TDLAS 技術(shu)(shu)的(de)現場在(zai)線 分(fen)析儀表已逐漸發展成熟, 能夠在(zai)各(ge)種高溫、高粉塵、高腐蝕等惡劣的(de)環境下(xia)進 行(xing)現場在(zai)線的(de)氣體濃度測(ce)量(liang)。
可(ke)調(diao)諧(xie)半(ban)導(dao)體(ti)(ti)(ti)激(ji)光(guang)(guang)(guang)光(guang)(guang)(guang)譜(pu)吸(xi)收(shou)(shou)(shou)技(ji)(ji)(ji)術(shu) TDLAS 本(ben)質上(shang)是一種光(guang)(guang)(guang)譜(pu)吸(xi)收(shou)(shou)(shou)技(ji)(ji)(ji)術(shu),通過 分(fen)析(xi)激(ji)光(guang)(guang)(guang)被氣(qi)體(ti)(ti)(ti)分(fen)子的(de)(de)選(xuan)擇性吸(xi)收(shou)(shou)(shou)來獲得氣(qi)體(ti)(ti)(ti)的(de)(de)濃(nong)度(du)。它與傳統(tong)(tong)紅外光(guang)(guang)(guang)譜(pu)吸(xi)收(shou)(shou)(shou)技(ji)(ji)(ji) 術(shu)的(de)(de)不同之(zhi)處在于(yu)(yu),半(ban)導(dao)體(ti)(ti)(ti)激(ji)光(guang)(guang)(guang)光(guang)(guang)(guang)譜(pu)寬(kuan)度(du)遠小于(yu)(yu)氣(qi)體(ti)(ti)(ti)吸(xi)收(shou)(shou)(shou)譜(pu)線的(de)(de)展寬(kuan),因此(ci), 半(ban)導(dao)體(ti)(ti)(ti)激(ji)光(guang)(guang)(guang)吸(xi)收(shou)(shou)(shou)光(guang)(guang)(guang)譜(pu)技(ji)(ji)(ji)術(shu)是一種高(gao)分(fen)辨率的(de)(de)光(guang)(guang)(guang)譜(pu)吸(xi)收(shou)(shou)(shou)技(ji)(ji)(ji)術(shu)。系統(tong)(tong)采用特定(ding)(ding) 波長的(de)(de)激(ji)光(guang)(guang)(guang)束穿過被測(ce)(ce)氣(qi)體(ti)(ti)(ti), 激(ji)光(guang)(guang)(guang)強(qiang)度(du)的(de)(de)衰(shuai)減與氣(qi)體(ti)(ti)(ti)的(de)(de)濃(nong)度(du)滿足朗伯.比爾(er)定(ding)(ding)理, 因此(ci)可(ke)以通過檢測(ce)(ce)激(ji)光(guang)(guang)(guang)強(qiang)度(du)的(de)(de)衰(shuai)減信息分(fen)析(xi)獲得被測(ce)(ce)氣(qi)體(ti)(ti)(ti)的(de)(de)濃(nong)度(du)。采用半(ban)導(dao)體(ti)(ti)(ti)激(ji) 光(guang)(guang)(guang)吸(xi)收(shou)(shou)(shou)光(guang)(guang)(guang)譜(pu)技(ji)(ji)(ji)術(shu)的(de)(de)激(ji)光(guang)(guang)(guang)氣(qi)體(ti)(ti)(ti)分(fen)析(xi)儀可(ke)從原理上(shang)抗背景氣(qi)體(ti)(ti)(ti)的(de)(de)干擾, 測(ce)(ce)量結果(guo)可(ke)靠 性高(gao)。
6.3.2 產品優(you)點
不受背景(jing)氣體(ti)的影響
傳統非色(se)散(san)紅外(wai)(wai)光譜(pu)(pu)(pu)(pu)(pu)(pu)吸(xi)收(shou)(shou)技術采(cai)用的(de)光源譜(pu)(pu)(pu)(pu)(pu)(pu)帶很寬(kuan)(kuan), 其譜(pu)(pu)(pu)(pu)(pu)(pu)寬(kuan)(kuan)范(fan)圍內(nei)除(chu)了被(bei)(bei)測 氣(qi)(qi)體的(de)吸(xi)收(shou)(shou)譜(pu)(pu)(pu)(pu)(pu)(pu)線(xian)(xian)(xian)外(wai)(wai), 還有很多基他背(bei)景(jing)氣(qi)(qi)體的(de)吸(xi)收(shou)(shou)譜(pu)(pu)(pu)(pu)(pu)(pu)線(xian)(xian)(xian)。因(yin)此, 光源發(fa)出的(de)光除(chu) 了被(bei)(bei)待測氣(qi)(qi)體的(de)多條譜(pu)(pu)(pu)(pu)(pu)(pu)線(xian)(xian)(xian)吸(xi)收(shou)(shou)外(wai)(wai)還被(bei)(bei)一(yi)些背(bei)景(jing)氣(qi)(qi)體的(de)吸(xi)收(shou)(shou), 從而(er)導(dao)(dao)(dao)致測量的(de)不準 確性。 而(er)半導(dao)(dao)(dao)體激光吸(xi)收(shou)(shou)光譜(pu)(pu)(pu)(pu)(pu)(pu)技術中使用的(de)半導(dao)(dao)(dao)體激光的(de)譜(pu)(pu)(pu)(pu)(pu)(pu)寬(kuan)(kuan)小(xiao)(xiao)于 0.001nm, 遠(yuan)小(xiao)(xiao)于被(bei)(bei)測氣(qi)(qi)體一(yi)條吸(xi)收(shou)(shou)譜(pu)(pu)(pu)(pu)(pu)(pu)線(xian)(xian)(xian)的(de)譜(pu)(pu)(pu)(pu)(pu)(pu)寬(kuan)(kuan)。如圖 2-1 所(suo)示的(de)“單線(xian)(xian)(xian)吸(xi)收(shou)(shou)光譜(pu)(pu)(pu)(pu)(pu)(pu)”數據。 同時在(zai)選擇該吸(xi)收(shou)(shou)譜(pu)(pu)(pu)(pu)(pu)(pu)線(xian)(xian)(xian)時,就(jiu)保(bao)證在(zai)所(suo)選吸(xi)收(shou)(shou)譜(pu)(pu)(pu)(pu)(pu)(pu)線(xian)(xian)(xian)頻率附(fu)近約 10 倍譜(pu)(pu)(pu)(pu)(pu)(pu)線(xian)(xian)(xian)寬(kuan)(kuan)度范(fan) 圍內(nei)無(wu)測量環境中背(bei)景(jing)氣(qi)(qi)體組(zu)分(fen)的(de)吸(xi)收(shou)(shou)譜(pu)(pu)(pu)(pu)(pu)(pu)線(xian)(xian)(xian), 從而(er)避免這些背(bei)景(jing)氣(qi)(qi)體組(zu)分(fen)對被(bei)(bei)測 氣(qi)(qi)體的(de)交叉吸(xi)收(shou)(shou)干(gan)擾,保(bao)證測量的(de)準確性。
不受粉(fen)塵干擾
如圖 2-1 激(ji)(ji)光(guang)(guang)(guang)氣(qi)體(ti)分析儀通過(guo)調制(zhi)激(ji)(ji)光(guang)(guang)(guang)器的(de)(de)(de)頻(pin)(pin)率(lv)使之周(zhou)期(qi)性地掃(sao)描(miao)(miao)被(bei)(bei)測(ce)(ce)氣(qi) 體(ti)的(de)(de)(de)吸(xi)(xi)收(shou)(shou)(shou)譜線(xian), 激(ji)(ji)光(guang)(guang)(guang)頻(pin)(pin)率(lv)的(de)(de)(de)掃(sao)描(miao)(miao)范圍被(bei)(bei)設置為大于(yu)被(bei)(bei)測(ce)(ce)氣(qi)體(ti)吸(xi)(xi)收(shou)(shou)(shou)譜線(xian)的(de)(de)(de)寬度(du), 從 而在一(yi)次掃(sao)描(miao)(miao)中(zhong)(zhong)包(bao)含(han)有不被(bei)(bei)氣(qi)體(ti)吸(xi)(xi)收(shou)(shou)(shou)譜線(xian)衰(shuai)減(jian)(jian)的(de)(de)(de)圖 2-1 中(zhong)(zhong)的(de)(de)(de)黃(huang)綠區(qu)(qu)( 1 區(qu)(qu)) 和被(bei)(bei) 氣(qi)體(ti)吸(xi)(xi)收(shou)(shou)(shou)譜線(xian)衰(shuai)減(jian)(jian)的(de)(de)(de)紅(hong)色區(qu)(qu)(2 區(qu)(qu)) 。從 1 區(qu)(qu)得到的(de)(de)(de)測(ce)(ce)量(liang)信號包(bao)含(han)粉(fen)塵(chen)和視窗污 染(ran)的(de)(de)(de)透過(guo)率(lv), 從 2 區(qu)(qu)得到的(de)(de)(de)測(ce)(ce)量(liang)信號除(chu)包(bao)含(han)粉(fen)塵(chen)和視窗污染(ran)的(de)(de)(de)透過(guo)率(lv)還包(bao)含(han)被(bei)(bei)氣(qi) 體(ti)吸(xi)(xi)收(shou)(shou)(shou)的(de)(de)(de)光(guang)(guang)(guang)強衰(shuai)減(jian)(jian)。因此, 通過(guo)在一(yi)個激(ji)(ji)光(guang)(guang)(guang)頻(pin)(pin)率(lv)掃(sao)描(miao)(miao)周(zhou)期(qi)內對(dui) 1 區(qu)(qu)和 2 區(qu)(qu)的(de)(de)(de)同時 測(ce)(ce)量(liang)可以準確獲得被(bei)(bei)氣(qi)體(ti)吸(xi)(xi)收(shou)(shou)(shou)衰(shuai)減(jian)(jian)掉的(de)(de)(de)透光(guang)(guang)(guang)率(lv), 從而不受粉(fen)塵(chen)及視窗污染(ran)產生(sheng)光(guang)(guang)(guang) 強衰(shuai)減(jian)(jian)對(dui)氣(qi)體(ti)測(ce)(ce)量(liang)濃度(du)的(de)(de)(de)影響(xiang)。
6.3.3 技術指標
1 .測量參數

第7章 氨(an)逃逸系統(tong)安(an)裝
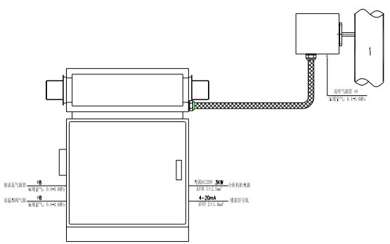
7.1 系統安裝總圖(tu)

7.2 取樣(yang)探(tan)頭安裝
焊接對裝法蘭
在(zai)工藝管道上(shang)開孔,開孔尺(chi)寸 60mm,將預裝(zhuang)法(fa)蘭(lan)套件(jian)焊接在(zai)工藝管道上(shang),
安裝方式如(ru)下圖(tu)所示:

固定采樣探(tan)頭
安(an)裝(zhuang)(zhuang)法(fa)蘭(lan)(lan)的固定孔與(yu)對(dui)裝(zhuang)(zhuang)法(fa)蘭(lan)(lan)相(xiang)對(dui)應。將采(cai)樣器的安(an)裝(zhuang)(zhuang)法(fa)蘭(lan)(lan)通過螺栓固 定在(zai)(zai)對(dui)裝(zhuang)(zhuang)法(fa)蘭(lan)(lan)上, 如下(xia)圖。固定時(shi)須注(zhu)意檢查安(an)裝(zhuang)(zhuang)法(fa)蘭(lan)(lan)與(yu)對(dui)裝(zhuang)(zhuang)法(fa)蘭(lan)(lan)密封面相(xiang) 對(dui)應, 同(tong)時(shi)在(zai)(zai)安(an)裝(zhuang)(zhuang)法(fa)蘭(lan)(lan)和對(dui)裝(zhuang)(zhuang)法(fa)蘭(lan)(lan)之間必須有密封墊(dian)圈, 防止采(cai)樣器出現泄 漏(lou)影(ying)響煙氣分析的真實值(zhi)。

7.3 機柜(ju)安裝

7.4 氣路連接(jie)

7.5 電路(lu)連(lian)接
電路安裝所需電纜信息見下表,具(ju)體(ti)接線請參照電氣(qi)接線圖(tu)紙(zhi)。

第8章 系統(tong)操作
8.1 系(xi)統上(shang)電
上電前(qian)應做好以下檢查(cha):
外觀檢(jian)查:確認分析柜內部件齊全,無損傷(shang)
電氣連接檢(jian)(jian)查:對照接線圖檢(jian)(jian)查接線是否正確可靠
電(dian)源(yuan)檢查:用(yong)(yong)萬用(yong)(yong)表確(que)認電(dian)源(yuan)電(dian)壓為 AC220V
管線(xian)連接檢查: 確認所有管線(xian)均正確敷設, 并已與系統(tong)對應接口正確連 接,包(bao)括(kuo):采(cai)樣管線(xian)、尾(wei)氣(qi)排放管線(xian)、壓(ya)縮氣(qi)管線(xian)等。

8.2 系(xi)統運行
確(que)(que)認(ren)所有閥門處于正確(que)(que)位置,確(que)(que)認(ren)壓縮(suo)氣源壓力正常, 按下柜(ju)內啟動按鈕(niu), 系統即可投入自(zi)動運行。系統包括三(san)種工作狀態:
采樣(yang)(yang)狀態(tai): 在此狀態(tai)下, 射流泵、采樣(yang)(yang)截止閥(fa)開啟(qi), 樣(yang)(yang)氣由采樣(yang)(yang)探頭經 伴熱管(guan)進入(ru)系(xi)統,儀(yi)表實(shi)時(shi)反映當前 NH3 濃度;
反吹狀(zhuang)態: 系統每采(cai)樣 2 小時(shi)執(zhi)(zhi)行(xing)一次探(tan)頭吹掃(sao)操作,此時(shi),射流泵、 采(cai)樣截止閥(fa)(fa)關閉(bi), 探(tan)頭箱反吹閥(fa)(fa)開啟, 壓縮(suo)氣進(jin)(jin)入探(tan)頭對濾芯進(jin)(jin)行(xing)吹掃(sao)。 也可在(zai)停止狀(zhuang)態時(shi),按反吹按鈕執(zhi)(zhi)行(xing)反吹操作;
報(bao)警(jing)(jing)狀態:當(dang)系(xi)統有以(yi)下情況時, 將停止系(xi)統正常工作流程, 發出報(bao)警(jing)(jing)信 號, 報(bao)警(jing)(jing)信號燈亮, 包括(kuo)伴熱(re)管溫度低(di)(di)、加熱(re)箱(xiang)溫度低(di)(di)、壓縮氣(qi)源壓力 低(di)(di)。
再次按下啟(qi)(qi)動按鈕(niu)時(shi),啟(qi)(qi)動按鈕(niu)彈起,系(xi)統可停止(zhi)。
8.3 儀表操作
8.3.1 測量界面
系統上(shang)電后儀表自(zi)動(dong)進行測量界面,如(ru)下所示:

8.3.2 設置界面

8.3.3 標(biao)定界(jie)面

按(an)下 CALI 鍵,儀表進入標(biao)(biao)定(ding)界面(mian),此時系(xi)統(tong)應處于(yu)停止(zhi)狀態(tai),將(jiang)標(biao)(biao)定(ding)閥(fa)置 于(yu)開狀態(tai),通入相(xiang)應標(biao)(biao)氣,即可(ke)對儀表進行標(biao)(biao)定(ding)操作。標(biao)(biao)定(ding)量(liang)程(cheng)點時,通過 方向鍵將(jiang)游標(biao)(biao)移(yi)至上圖所示 20.00 處, 按(an) ENT 鍵, 游標(biao)(biao)閃爍, 可(ke)輸入標(biao)(biao)氣的 實(shi)際濃度值, 然(ran)后再按(an) ENT 鍵確認(ren)。當測量(liang)值穩定(ding)后, 再將(jiang)游標(biao)(biao)移(yi)至 SAVE SPAN 處, 按(an) ENT 鍵, 彈出(chu)確認(ren)框, 選(xuan)擇(ze) YES 即可(ke)保存標(biao)(biao)定(ding)記錄。零點標(biao)(biao)定(ding) 與量(liang)程(cheng)標(biao)(biao)定(ding)方法相(xiang)同。 標(biao)(biao)定(ding)時需(xu)注意:
系統應(ying)處(chu)于熱(re)穩定狀態;
標(biao)定(ding)流量應穩定(ding)在 2L/min。
第(di)9章 日常維護
9.1 系統維護

9.2 儀表(biao)維護
儀表(biao)(biao)維護(hu)主要包括儀表(biao)(biao)標(biao)定(ding)和鏡(jing)片清洗,由于本儀表(biao)(biao)采(cai)用(yong)穩定(ding)的激(ji)光(guang)(guang)光(guang)(guang)源, 儀表(biao)(biao)長期穩定(ding)性較(jiao)好(hao), 所(suo)以一般出(chu)廠標(biao)定(ding)后, 在現場可(ke)不需再(zai)次標(biao)定(ding), 僅當對測 量有(you)疑問時(shi)可(ke)執行此操。
鏡(jing)(jing)片清(qing)洗(xi)工(gong)作(zuo)是本儀(yi)器在現場使用過程中需要(yao)進行(xing)的主要(yao)維護(hu)工(gong)作(zuo), 當光強 降到 80%以(yi)下(xia)時(shi), 即應進行(xing)此操作(zuo), 正常情況下(xia), 操作(zuo)周期在 3 個月左右(you)。鏡(jing)(jing)片 清(qing)洗(xi)時(shi)需停止(zhi)儀(yi)表工(gong)作(zuo), 先拆下(xia)兩端儀(yi)表端蓋, 然后取下(xia)鏡(jing)(jing)框進行(xing)清(qing)洗(xi), 清(qing)洗(xi)時(shi) 用干凈紙巾(jin)揩清(qing)水(shui)輕輕擦拭(shi)即可(ke), 取下(xia)鏡(jing)(jing)框時(shi)應戴手套, 以(yi)免高溫燙傷。鏡(jing)(jing)片裝 配圖如下(xia):

第10章 項目執行(xing)
10.1 工程計(ji)劃表(biao)
下(xia)述工程計(ji)劃表為一般情況下(xia)計(ji)劃周期。具體計(ji)劃周期, 根據實際商務合同 而定。
工作內(nei)容 甲方(fang) 乙方(fang)
時間節(jie)點
合同(tong)簽(qian)訂 √ √ 7 天
企業準(zhun)備 √ 15 天
系統集成 √ 30 天
系統(tong)安裝 √ 指導 1~2 天
系(xi)統調試(shi) 參與 √ 1 天
系統測試驗(yan)收 √ √ 1 天(tian)
工程(cheng)準備
工(gong)程(cheng)前(qian)期準備(bei)分三(san)部分進行(xing)(xing): 明確雙方權(quan)利和(he)義務并(bing)簽訂合同; 現場勘察和(he) 企業準備(bei)、系(xi)統設計、集成安裝和(he)調試(shi),聯網以及運行(xing)(xing)。
人(ren)員準備
在線(xian)監測(ce)工程的(de)(de)專(zhuan)業公(gong)司(si)配有(you)電子儀表、計算機軟(ruan)件、通訊網絡專(zhuan)業技(ji)術人 員, 具有(you)雄厚的(de)(de)技(ji)術實(shi)力。為了(le)及時(shi)優(you)質(zhi)完成煙氣在線(xian)監測(ce)項(xiang)目(mu)(mu), 公(gong)司(si)將抽調(diao)由各(ge)專(zhuan)業技(ji)術骨干組成的(de)(de)強有(you)力的(de)(de)工程項(xiang)目(mu)(mu)部。
技術準備(bei)
工(gong)(gong)程(cheng)(cheng)項目部根據以往在(zai)線監測系統工(gong)(gong)程(cheng)(cheng)的經驗(yan), 專(zhuan)門對本次在(zai)線工(gong)(gong)程(cheng)(cheng)的技(ji)術 路(lu)線和規范(fan)要(yao)求, 儀器設(she)備的防雷, 除(chu)水、以及現場情況、計算機軟件(jian)功能和應 用、數(shu)據傳輸(shu)和通訊模式等關鍵技(ji)術都作了反(fan)復研究論(lun)證, 從技(ji)術上作了充分的 準(zhun)備。
10.2 用戶培訓
我(wo)公(gong)司歷(li)來十分重視用(yong)戶培(pei)訓(xun)(xun)工(gong)作, 通(tong)過(guo)對用(yong)戶技術人(ren)員的(de)培(pei)訓(xun)(xun), 公(gong)司與用(yong) 戶進(jin)一步(bu)了(le)解(jie)和(he)溝通(tong), 同時(shi), 公(gong)司通(tong)過(guo)培(pei)訓(xun)(xun)用(yong)戶技術人(ren)員, 聽取用(yong)戶意見, 了(le)解(jie) 用(yong)戶的(de)需求,以便公(gong)司進(jin)一步(bu)提高(gao)產品質量,為用(yong)戶提供更優(you)質的(de)服務。
為了(le)使業主的(de)工作(zuo)(zuo)人(ren)員(yuan)能完全(quan)掌握煙氣連續(xu)(xu)在線監測系(xi)(xi)統(tong)(tong)的(de)工作(zuo)(zuo)程(cheng)序、操(cao)作(zuo)(zuo) 規(gui)范(fan)、運行規(gui)范(fan)、常規(gui)維護等基本知識(shi), 我公司將(jiang)在充分(fen)征求用(yong)戶意(yi)見后編制一 套完整的(de)培(pei)訓(xun)(xun)(xun)計(ji)劃和培(pei)訓(xun)(xun)(xun)課(ke)程(cheng)大綱(gang),提(ti)供培(pei)訓(xun)(xun)(xun)所需(xu)的(de)教材并指派(pai)工程(cheng)師講解說 明,并負責(ze)對業主操(cao)作(zuo)(zuo)及(ji)維護管(guan)(guan)理人(ren)員(yuan)進(jin)行包括煙氣連續(xu)(xu)在線監控(kong)系(xi)(xi)統(tong)(tong)的(de)使用(yong)、 系(xi)(xi)統(tong)(tong)和設備(bei)的(de)操(cao)作(zuo)(zuo)和維修(xiu)的(de)全(quan)面培(pei)訓(xun)(xun)(xun)。通過講授系(xi)(xi)統(tong)(tong)的(de)性能、結(jie)構原理、維護管(guan)(guan) 理技術及(ji)上機(ji)實際操(cao)作(zuo)(zuo)等培(pei)訓(xun)(xun)(xun), 使甲方人(ren)員(yuan)能獨立進(jin)行管(guan)(guan)理、運行、故障處理及(ji) 日常測試維護,確保系(xi)(xi)統(tong)(tong)能正常安全(quan)運行。
我(wo)公(gong)司提供(gong)的(de)培(pei)訓(xun)指導人(ren)員污染源在線監控領域都具有豐富的(de)應用和維(wei)護 經驗。未經業主(zhu)項目(mu)代表批(pi)準, 不(bu)得(de)隨意(yi)更換已確定的(de)培(pei)訓(xun)指導人(ren)員。如果(guo)業主(zhu) 認為培(pei)訓(xun)指導人(ren)員不(bu)合(he)適可要求更換。
所有(you)本項目有(you)關的(de)員工和(he)將來的(de)操作員都將根據(ju)項目的(de)要求進(jin)行充分的(de)培
訓,滿足系統的(de)設計和維護的(de)需要。
a.現場培(pei)訓(xun)
培訓目(mu)的(de):培養儀表(biao)間的(de)日(ri)常(chang)操(cao)作(zuo)人員,掌握設(she)備的(de)日(ri)常(chang)操(cao)作(zuo)與維 護。
培訓對象(xiang):業(ye)主(zhu)單(dan)位現(xian)場(chang)操(cao)作(zuo)人員,有一年以上相(xiang)關(guan)儀(yi)器設備操(cao)作(zuo) 維護經驗。
培訓地點:設備安裝現場。
b.集中培(pei)訓
時(shi)間(jian)安排 系(xi)統調(diao)試完成后培(pei)訓:系(xi)統安裝調(diao)試完成后由(you)甲方參與進(jin)行(xing)。
培訓教材
相關設備使用說明書。
培訓方(fang)式
專(zhuan)業技術人(ren)員授課、現場實際操(cao)作演示與指(zhi)導。
培訓地點
設備安(an)裝現場。
c.培(pei)訓內容
系統(tong)基本(ben)原理和操作規范;
系統的(de)工(gong)作流程及注(zhu)意事項;
常規維護的(de)基本知識;
一般性故障處(chu)理;
軟件操作(zuo)培訓;
d.培訓講師
現(xian)場培訓由(you)我公(gong)司現(xian)場工程師負責(ze)實施。
10.2.1 驗(yan)收測試
系統安(an)(an)裝(zhuang)(zhuang)調試(shi)(shi)完畢后 1 天(tian)內由(you)甲方進行驗收(shou)(shou);驗收(shou)(shou)方式(shi)為將標氣通入儀器, 若儀器測量(liang)結果(guo)在儀器的測量(liang)誤差(cha)內, 視為驗收(shou)(shou)合(he)格; 系統驗收(shou)(shou)合(he)格, 甲方在《現 場服務確認單》上簽(qian)字(zi)生效; 如(ru)系統安(an)(an)裝(zhuang)(zhuang)調試(shi)(shi)完畢后甲方未(wei)簽(qian)字(zi)且一周(zhou)內未(wei)提出 書(shu)面疑義的,視為系統驗收(shou)(shou)合(he)格。
10.3 質量保證
10.4 質量保證期
質保(bao)期為(wei)分析(xi)儀(yi)制造商發貨之日起 13 個月(yue)或系統驗收之日起 12 個月(yue), 二者 以先到時間(jian)為(wei)準。
非因乙方產(chan)品自身存在(zai)的品質質量問(wen)題引起的問(wen)題均不在(zai)質保(bao)范圍內, 超過(guo) 質保(bao)期或者在(zai)質保(bao)期內發(fa)生如下(xia)故障,均屬于(yu)保(bao)外維修(xiu),不提供免費(fei)保(bao)修(xiu)服務, 故障包括但不限于(yu):
1)由于使用(yong)(yong)不(bu)當(進水(shui)、腐(fu)蝕、失火(huo)、強電(dian)串入等(deng)); 2)不(bu)可抗力(地(di)震、雷擊(ji)、洪水(shui)等(deng))造成的(de)損壞(huai); 3)未經允許(xu),產品內(nei)部(bu)擅自改動; 4)現場不(bu)符合設備(bei)使用(yong)(yong)環境要(yao)(yao)求的(de); 5)未按照要(yao)(yao)求進行操作(zuo)、維(wei)護、保養的(de); 6)其他(ta)未按用(yong)(yong)戶手(shou)冊及培訓規定使用(yong)(yong),引起產品損壞(huai)的(de)。
10.5 性能(neng)保證(zheng)
乙方提供的(de)系(xi)統是(shi)先進、可(ke)靠、有(you)效和完備的(de)。在質保期內, 乙方負(fu)責更換 有(you)故障的(de)器件。
標氣(qi)、濾芯等(deng)消耗品不在此質保(bao)范圍之內。
10.6 質量保證
根據甲方技(ji)術要求,乙方做以下保證:
保證所供設備為全新的;
保證所供設備(bei)的(de)設計(ji)、制造是(shi)無缺損的(de)、完整(zheng)的(de);
保(bao)證所供設(she)備能(neng)夠在本次招(zhao)標文(wen)件指定環境現(xian)場(chang)正常運行,數據準確、 穩定、可(ke)靠;
保(bao)證所供設備在使用正(zheng)常壽命期限內(nei)能(neng)夠正(zheng)常運行,令甲方滿意;
保證提供現(xian)場指導安裝、調試、直至設備投運的(de)完整服(fu)務;
保證所供資(zi)料真實有效,設備的操作與維護可完全按乙方所供資(zi)料進行 操作維護;
10.7 其它
未(wei)經乙方(fang)允許, 甲(jia)方(fang)不得將乙方(fang)提供給(gei)甲(jia)方(fang)的(de)任何資料、文件和技(ji)術內容透 露給(gei)第三方(fang), 否(fou)則乙方(fang)保(bao)留(liu)追(zhui)究甲(jia)方(fang)責任, 要(yao)求甲(jia)方(fang)賠償由此給(gei)乙方(fang)造成(cheng)的(de)損失 的(de)權利。
本(ben)技術方(fang)案(an)簽字(zi)、蓋章生效,本(ben)協議與合同(tong)具(ju)有同(tong)等法律效力(li)。如(ru)果本(ben)協議 條款與商務(wu)合同(tong)條款沖突,以(yi)商務(wu)合同(tong)條款為準。
本方案未盡事(shi)宜,雙方友(you)好協商解決(jue)。


需求溝通傾聽客戶需求,了解用戶使用環境和現場工況
方案設計根據現場實際工況,針對性出具解決方案
合同簽訂技術和商務規范確認,簽訂合作協議
產品制作選擇最優質的元器件,嚴格按照技術協議
調試安裝現場規范安裝,靜態動態調試,分析儀運行
售后服務后續維護,持續跟進,終身維修